详细介绍
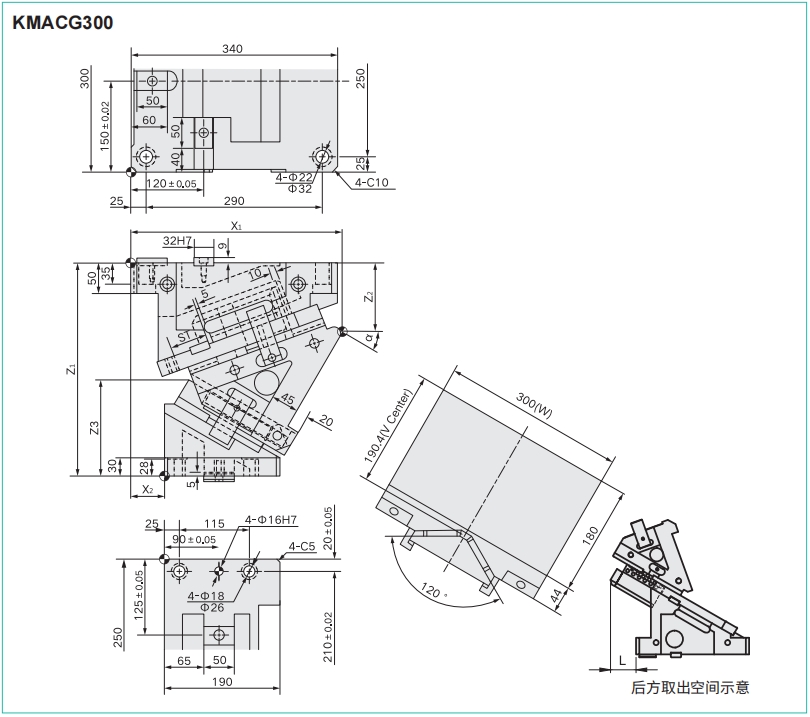
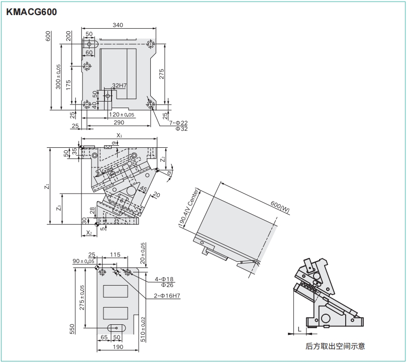
KMACG为了适应更快冲速、提高斜楔滑动受力的要求,斜楔结构做了改进,采用了氮气弹簧增加斜楔的回程力,滑块挡块通过导板槽锁住,滑块返回增加了氮气弹簧缓冲,减少了滑块返回对斜楔的冲击。
适用于比KMACA回程力大、更耐受冲击的场合。
KMACG滑块与底座和驱动块的滑动面均增加了铜合金导板,比KMACA的导滑性能更好。
V型尖点不同点是: KMACG滑块的V型尖点为190.4mm。
KMACA滑块的V型尖点为183mm。
KMACA是采用JIS标准。
安装面宽度有 200300、400、500、600
V型导向的自动调芯机构。
滑块为后方拔出式样容易调整。
不卸下滑块即可从后方拔出弹簧,容易调整下死点。
角度0°- 60°,5°为一间隔。
尺寸图 订购型号 产品目录





















